LWH
身軽に軽快に暮しを楽しむ人のための小さな家
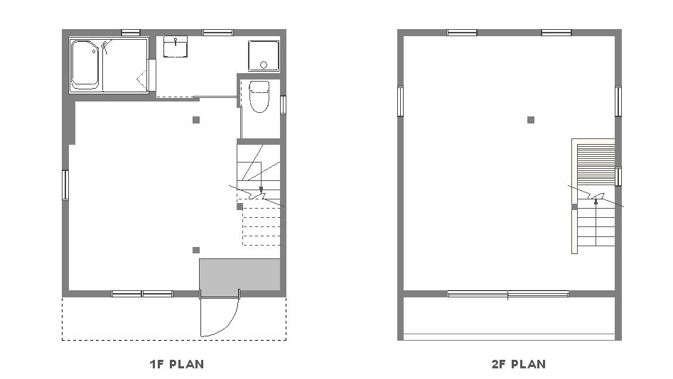
基本平面図
敷地の状況や法的規制により、プランや屋根の形状は変わります。
小さい敷地の場合、対応できない事があります。

密集地でも建てられる事を前提で考えています。玄関が全面道路側になります。
北側道路の場合には、いわゆる北向きの家になります。1階は寝室と考えていますので「北向きでもいい」と考えます。2階リビングはどうでしょう?密集地の場合、北側の道路の反対、つまり敷地の奥は、お隣の家が接近している状況だと考えますので、そちら(敷地億)が南だからと言って「部屋は南向きがいい」というのは、この場合成立しません。ですが、トップライトから光は十分に入りますし、日も差し込みます。北側の大きな窓により、決して暗くはなく十分な明るさです。
これまでの様々な敷地条件で設計してきた経験で、自信をもって言えます。「北向きでも暗くない!」と。
玄関を家の正面ではなくて、側面(横)にする事も可能です。敷地に余裕があるならば、玄関を横から入るようにし、北側道路であっても、家を南に向ける事が可能になります。
家のカタチ

断面図

インテリア
家族4人が住む場合のプランを元にした参考イメージです。2階だけです。。
(3~4人家族のイメージが混ざっています)
▲階段を上ったところから見たリビング

▲リビング正面から奥を見る
▲キッチンを正面から見る
▲リビングの奥が子供のスペース。ロフトベットを作り付にすれば、下に机とクローゼットが作れ、子供ふたりの専用スペースが作れる。(この絵ではクローゼットを付けていません)
▲ロフトベッドからリビングを見る

▲リビング奥からバルコニー方向を見る
▲リビングのキッチン側から階段方向を見る
暮しの例-1
家族4人の家

暮しの例-2
夫婦ふたりの家

暮しの例-3
夫婦ふたりの家 バイクガレージハウス

自由に考えてみてください
ここにあるプランは、一例です。
この家の基本プランの中で、もっといろいろ考えられます。
敷地に余裕があるならば、もう少し家を広げてみてもいいでしょう。
もしあなたが、どんなふうに暮らしていきたいのかが明確でないとしたら、頑張って基本プランの中で暮している事をイメージしてみてください。今住んでいる家を参考にして広さをイメージできると思います。
どうしても必要であれば、面積を大きくしましょう。敷地の大きさやご予算にゆとりがあるならば、小ささを我慢する事はありません。
LWH 概要
構 造 : 木造・地上2階
建築面積 : 24.8m2(7.5坪)
延べ面積 : 53.7 m2(16.2坪)
*バルコニーを除く延べ面積 : 49.6 m2(15.0坪)
1階床面積: 24.8m2(7.5坪)
2階床面積: 24.8m2(7.5坪)+ バルコニ-部分面積 4.1 m2(1.2坪)= 28.9 m2(8.7坪)
*LWHのバルコニーの形体は法規上床面積に算入します。
対応可能敷地
間口:約5.8m 以上、奥行:約8.7m以上 面積:約50m2(約15坪)以上
が目安となる最低必要な土地の大きさです。
前面道路幅4m、建ぺい率60%を想定しています。
バルコニーの上の屋根の出を無くす事で、奥行が約7.9mの敷地でも可能です。
敷地面積がぎりぎりの場合、敷地に対する道路の位置や方位、法的規制により対応できない場合があります。
一人で悩まずに、気楽にご相談ください。
多くの方の「一歩前進」のお役に立てています。
メ-ルマガジン【+LIFE】登録(無料)
シンプルな考え方、シンプルな暮し方と家づくりについて書いています。
メルマガ読者だけの特別なご案内もありますので<ぜひご登録ください。
申込はこちら ↓
http://form.os7.biz/f/77cf42a6/
もしご不要となったら、ご自身で解除できます
>> ページのTOPへ


