
「家族とは・・」という施主の問いから始まった家づくりです。
その家族の住まいには
・それぞれの個性の尊重と和
・個々の活動をさまたげず安らげる
「空間」をご希望 。
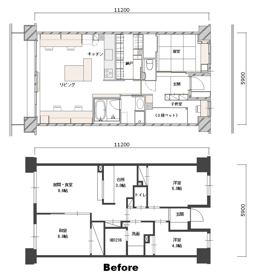
65m2 3LDK を解体し、家族4人分のスペースを作った南側の大きな「リビング」と北側の最小限の「寝るスペース」という 大きく2つのブロックに分けたプランを提案しました。


玄関(北側)からリビング(南側)方向
北側には玄関とその両側にギリギリまで小さくした寝室と子供室があります。
仕切りは全て引戸であければ家中がオープンにつながります。風が抜け、家族の気配を感じられます。

寝室
限られた面積のため、床を一段上げ、下を全面床下収納にしました。

寝室から玄関方向
玄関の下駄箱の向うに子供部屋。2段ベッドを作り付。

リビングから玄関方向
「リビング」と「寝るスペース」の中間に水関係の機能があります。右の茶色く塗られてある部分の向うが浴室+洗面脱衣。写真左がキッチン。


家族4人分の机をリビングの両側に壁に作り付け、キッチンを北側にし、部屋のまん中を開け、家族それぞれが自分の事や料理をしていても、『いつも家族がいっしょ』の暮しです。

リビング南側
床:杉板3cm 壁・天井:チャフウォール

キッチンは全て作り付

【鴻ノ巣の家について】

WEBコンペの HOUSE COMPETITION(活動終了) で選ばれました。
----------------------------------------------------------
家族とは・・・
・各自の個性を尊重した最も接点の強固な集団
・その接点の一つが愛情
家族の成長とは・・・
・その個性を限りなく発展させること
家に求めること・・・
・個々の活動をさまたげず安らぎのある空間
-----------------------------------------------------------
以上は、施主Aさんがコンペに応募するにあたり考えられた事です。
共働きの夫婦+小学生の子供2人(当時)が、各自が一個人として独立し、愛情を持って尊重しあう。つまり、まず親、子供というのがあるのではなく、個人である、ということなのです。その上で・・「個々の活動をさまたげず、お互いが尊重しあい、しかし、家族であるからこそいっしょの時間、空間を大切にしたい、しかし、時には、ひとりで安らげる場も欲しい・・・」それが Aさんの願い でもあります。
3LDKという間取りを、[ リビング(家族のスペース)][ 寝る部屋 ][ 収納・風呂・トイレ ] と大きく3つの要素に整理したプランを提案しました。

リビングを広げ、そこには、キッチンと家族4人分の大きな机を作り、残りの部分は食事スペースであり、くつろぐスペースであります。基本的にはここで家族みんなが、自由にすごします。お互いの気配を感じ、誰かが何かをしている時には気づかいながら、家族みんなが「いつもいっしょ」です。
Aさんの住まいの構想は 15年 をひと区切りとして考えられました。まずは最初の15年がスタート!(2005年~) その成果は・・・2020年
■ 建築概要
| 建築地 | :埼玉県鴻巣市 |
| 施主 | :夫婦+子(ふたり) |
| 構造規模 | :マンション7階/10階 |
| 専有面積 | :64.8 m2(19.6 坪) |
| 施工 | :大石工務店 |
鴻ノ巣の家 についての話をブログにも書いています。
”考えている事・見ているもの”が
「何か違う」と思うなら、
ひとりで悩み続けないで、
よかったら、家の話しをしませんか。
▼ 家づくりの無料メール相談
*印はご記入ください
シンプルな暮しと家を考えるメールマガジン
【日美の手帖】 を発行しています。(購読は無料)
・家づくりにおいて「当たり前」と言われる事は本当に正しいのでしょうか?
・家づくりは何を考えればいいのでしょうか?
・物を減らしたくても簡単にはできません。物とどんなふうに付き合っていけばいいのでしょうか?
・シンプルがいいというけれど、一体どんな事なのでしょう?
・無垢の木がいいって言うけれど、なぜいいのでしょう?
・そもそも無垢の木って何でしょうか?
もし、ひとつでも気になるのなら・・
そして、シンプルな暮し・シンプルな家 に興味あるなら
一度ぜひ読んでみてください。
申込はこちら ↓
http://form.os7.biz/f/77cf42a6/
もしご不要となったら、ご自身で解除できます

