


外壁:ガルバリュム鋼板波板 + サイディング

建物エントランス
格子部分の内側は、駐輪場がある。格子は杉板に白塗装。 駐輪場の通風のためと、防犯 のために内部の気配を感じられるようにするため。

1階駐輪場
駐輪場の他 各戸の電気・ガスのメーターがある。
ここにひと部屋作る事も可能だったが、それよりも、一般的なアパートにある雑然とした雰囲気を作るものを全てここに納める事を優先した。

エントランス


共用部の外廊下・外階段
共用部には、メーターや自転車 などいっさいなく、気持ちいい 場になっている。


住戸内部
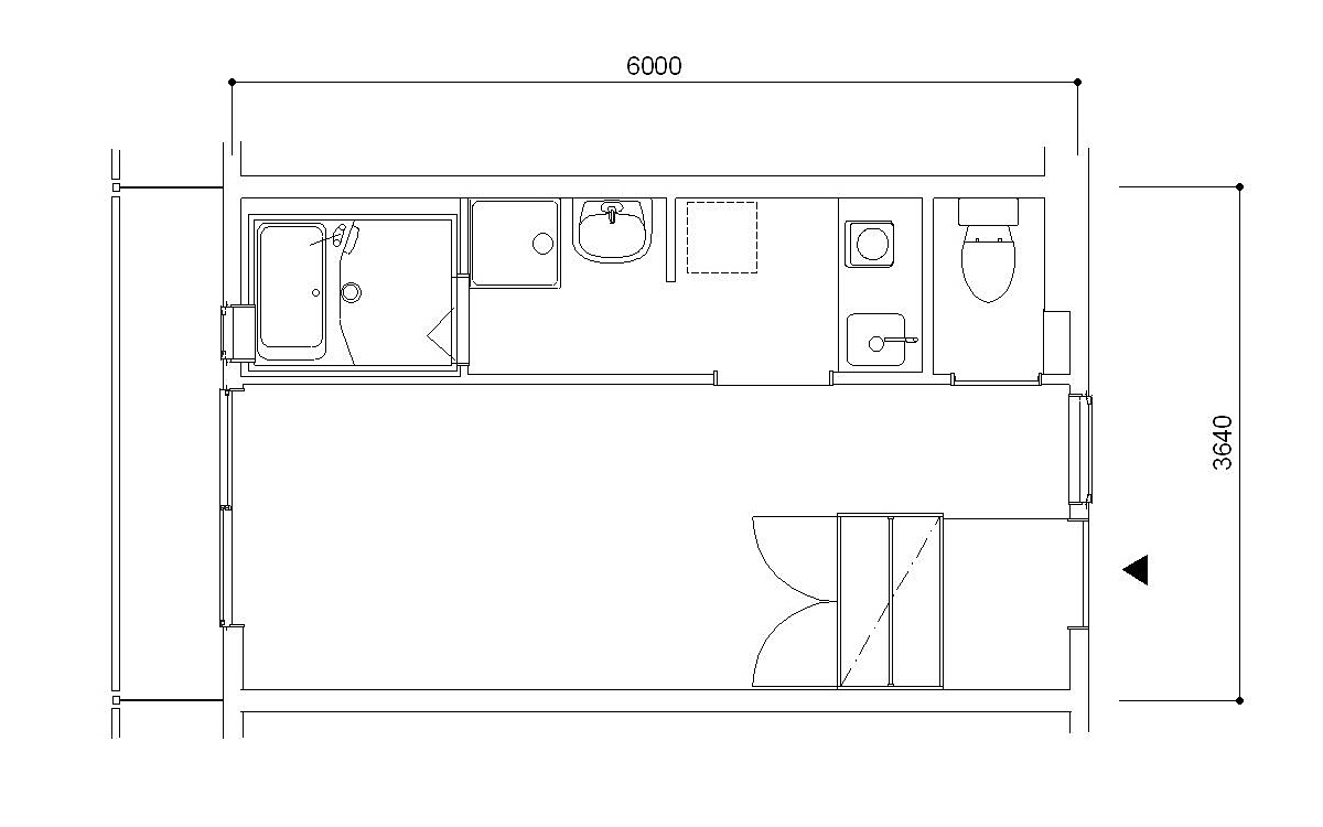
巾2.1m、奥行き6mの居室(約8帖)。壁をはさんで、キッチン、浴室、洗面、トイレがある。収納は可動式。照明は、配線ダクトにスポット ライトとし、器具の位置の変更・増設が自由である。
可動式の収納、位置を変更できる照明で、入居者が室内を自由にレイアウトできるように考えた。
【M'sについて】

場所は、京王線明大前駅に近く、独身の社会人を対象とした木造アパートを計画。
今までの単身者用賃貸は、「いかに賃料を稼ぐか」の装置でしかなく、「住んでみたい」と思うようなものはなかなかない。まして木造アパートでは。。
木造アパートであっても、誰でも、「自分らしく住みたい」と思う。
その思いを実現するために計画が始まった。
1住戸は、約21.6m2でワンルーム。ありがちなワンルームのプランではなく、キッチン、浴室、洗面、トイレの水関係の領域と居室の部分をはっきりと分けたプランとした。
どうしても雑然としてしまうキッチン部分や洗面脱衣部分を隠すことができ、帰宅時に気持ちよく部屋に入ることができる。また、領域をわけた結果、居室の間口は約2.1mとなるが、奥行きは約6mあり、決して狭さを感じない。南北に窓があり室内の空気がこもることもない。細長い部屋である事が、家具のレイアウトがしやすく、住人の個性的な住い方が可能。

築後7年間 (2008年時点)満室を維持。空きが出ると1か月以内に入居者が決定するという人気物件。
全国賃貸住宅新聞 2008年1月28日No.807号 掲載
■ 建築概要
| 建築地 | :東京都世田谷区 |
| 用途 | :集合住宅 ワンルーム:6戸 1K:2戸 |
| 構造規模 | :木造2階建て |
| 建築面積 | :140.7m2(45.7坪) |
| 1階面積 | :121.0m2(36.6坪) |
| 2階面積 | :135.8m2(41.1坪) |
| 延べ面積 | :256.8m2(77.7坪) |
| 施工 | :(株)ワコーホーム |
”考えている事・見ているもの”が
「何か違う」と思うなら、
ひとりで悩み続けないで、
よかったら、家の話しをしませんか。
▼ 家づくりの無料メール相談
*印はご記入ください
シンプルな暮しと家を考えるメールマガジン
【日美の手帖】 を発行しています。(購読は無料)
・家づくりにおいて「当たり前」と言われる事は本当に正しいのでしょうか?
・家づくりは何を考えればいいのでしょうか?
・物を減らしたくても簡単にはできません。物とどんなふうに付き合っていけばいいのでしょうか?
・シンプルがいいというけれど、一体どんな事なのでしょう?
・無垢の木がいいって言うけれど、なぜいいのでしょう?
・そもそも無垢の木って何でしょうか?
もし、ひとつでも気になるのなら・・
そして、シンプルな暮し・シンプルな家 に興味あるなら
一度ぜひ読んでみてください。
申込はこちら ↓
http://form.os7.biz/f/77cf42a6/
もしご不要となったら、ご自身で解除できます
